Cityscape Oasis

396 SQ FT | 1 BED | 1 BATH | LOFT

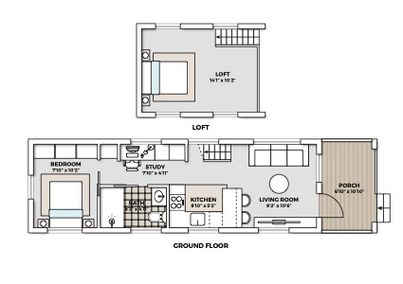
Immerse yourself in urban living redefined with the Cityscape Oasis, park model RV that seamlessly blends modern design with metropolitan flair. Spanning 396 square feet, this residence is a true urban sanctuary, featuring a single bedroom and high vaulted ceilings that create an immediate sense of openness. The 66-square-foot deck extends the living space outdoors, providing a perfect balance between indoor and outdoor living.

European-style cabinets with quartz countertops grace the kitchen, offering a sophisticated backdrop for culinary pursuits. The bedroom, adorned with built-in cabinetry, seamlessly integrates storage with elegance. Additionally, a spacious 150-square-foot loft adds versatility to the living space. LED lighting casts a warm glow, ensuring every moment spent in the Cityscape Oasis is surrounded by the perfect ambiance. With flexible living arrangements, this park model RV caters to diverse lifestyles, offering the epitome of compact luxury in the heart of the city.

©2026 Gulf Atlantic Cottages | All Rights Reserved | Privacy Policy | Accessibility | Marketing by Digital Lightbridge