Sierra Sky

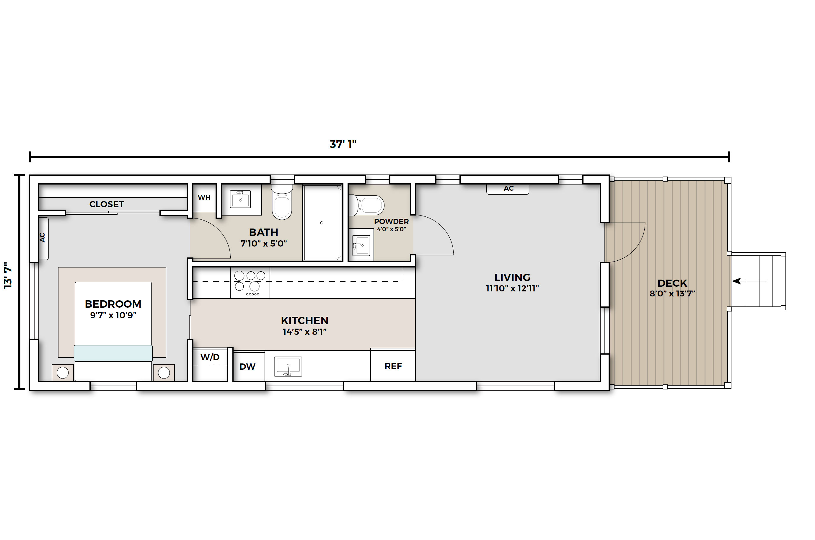
499 SQ FT | 1 BED | 1.5 BATH

Brand new 2025 1 Bedroom, 1.5 Bath Resort Cottage Home features a bright open floor plan, glass enclosed shower, in unit stacked washer and dryer, and a 8’ covered front porch perfect for entertaining. The kitchen includes energy-efficient stainless steel appliances, quartz counters, soft close cabinets, and a deep stainless sink. Bathroom features a LED lighted mirror.

The cottage boasts an open-concept floor plan, a glass-enclosed shower, an in-unit stacked washer and dryer, and an eight-foot covered front porch, ideal for entertaining. The kitchen is equipped with energy-efficient stainless steel appliances, quartz countertops, soft-close cabinetry, and a deep stainless steel sink. The bathroom includes an LED-lighted mirror.

©2026 Gulf Atlantic Cottages | All Rights Reserved | Privacy Policy | Accessibility | Marketing by Digital Lightbridge